La commune d'Haraucourt est en cours de réhabilitation de l'ancien presbytère en Tiers-lieu.
Ce projet est le fruit d'une concertation menée en 2024 avec les habitants et en lien avec les représentants et les membres des associations du village. Il a pour but de permettre de développer les activités communales et associatives déjà nombreuses dans un lieu convivial et plus adapté. Il ambitionne aussi la création d'un café et d'une épicerie associative.
Pour ce projet la commune est lauréate du programme "Village d'Avenir" porté par l'Agence Nationale de la Cohésion des Territoires (ANCT) et bénéficie d'un soutien technique de la préfecture et du CAUE (Conseil d'Architecture, d'Urbanisme et de l'Environnement) ainsi que potentiellement de financements particuliers de l'état et des collectivités locales.
La maitrise d'oeuvre recrutée, le cabinet "Once upon a big time Architecture", a travaillé depuis mars 2025 et livré l'APD (Avant-Projet Définitif) le mercredi 17 décembre.
Ci-joint quelques éléments du projet au stade de l'APD.
Note descriptive Tiers-lieu
Esquisse
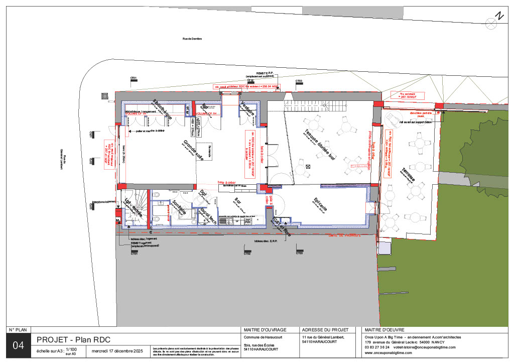
Plan - RDC
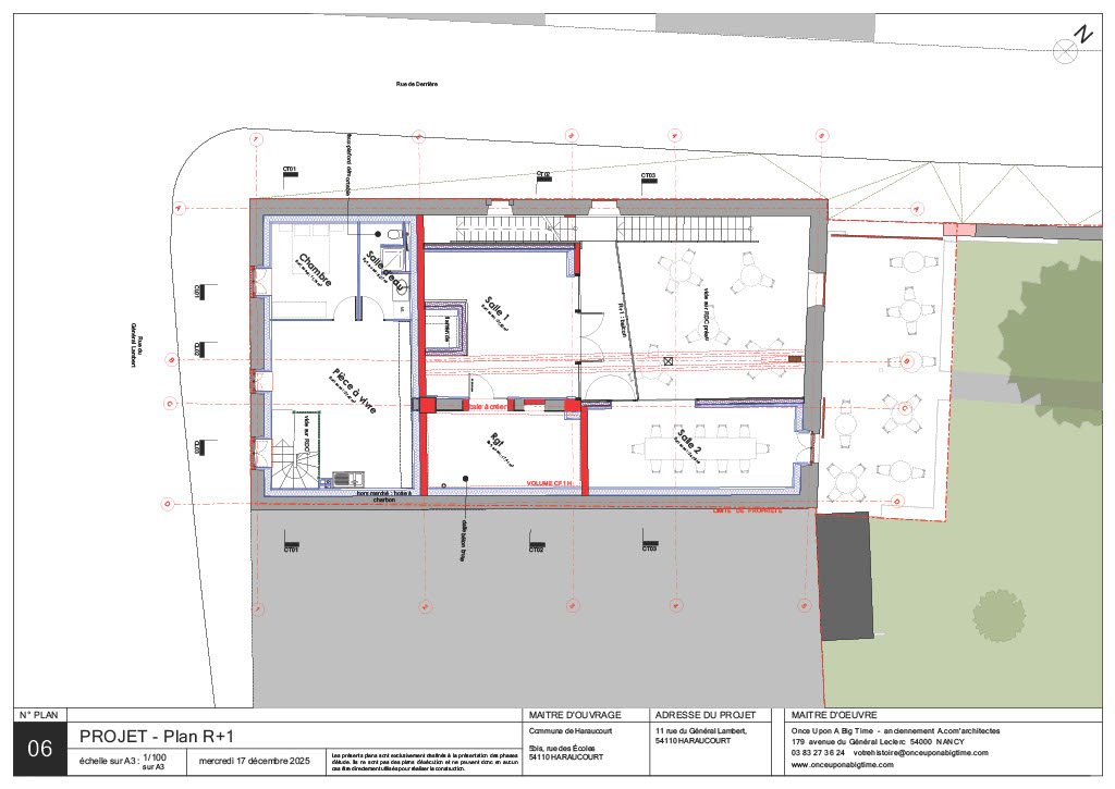
Plan - Etage 1
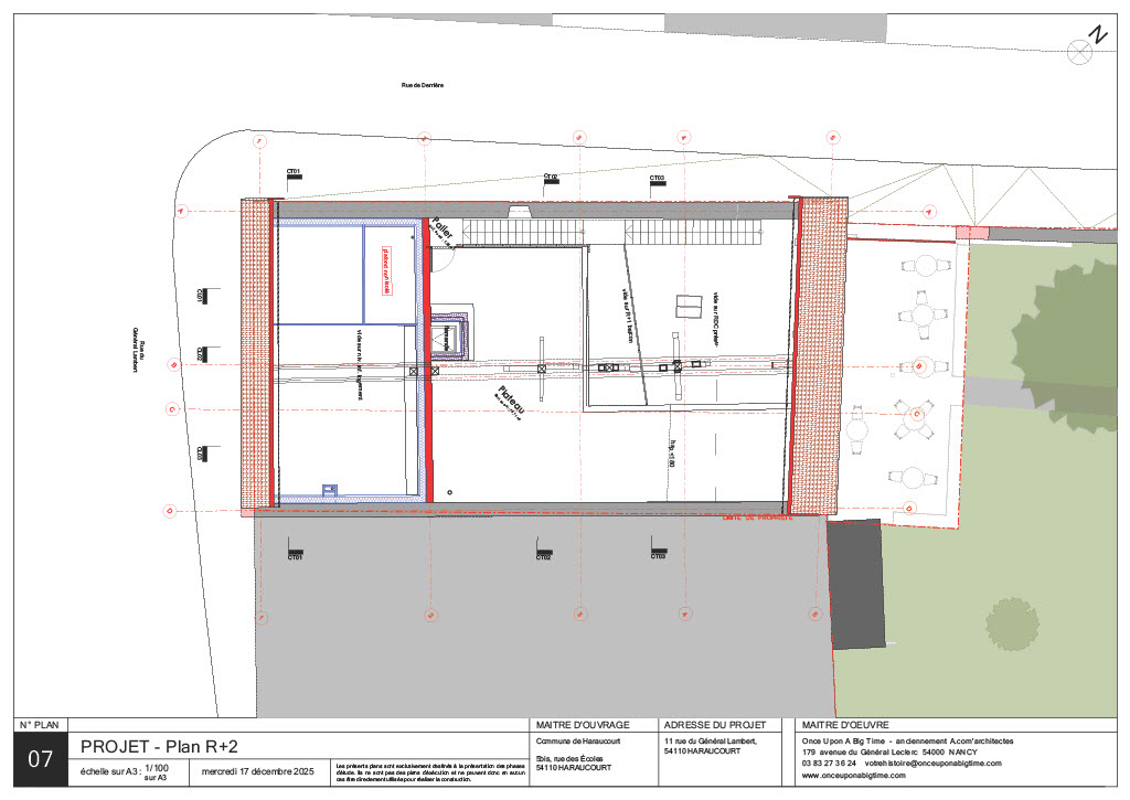
Plan - Etage 2
Vues extérieurs
Evaluation des couts - APD









